ACCEDI MY ASTE / REGISTRATI
Seguici su
Cerca

Tribunale di AREZZO

ESECUZIONE IMMOBILIARE POST LEGGE 80 249/2017

PREZZO

23.940,00 €

DATA ASTA: 21/01/2026 10:00

TIPOLOGIA: IMMOBILE RESIDENZIALE

VISUALIZZAZIONI: 53

DESCRIZIONE

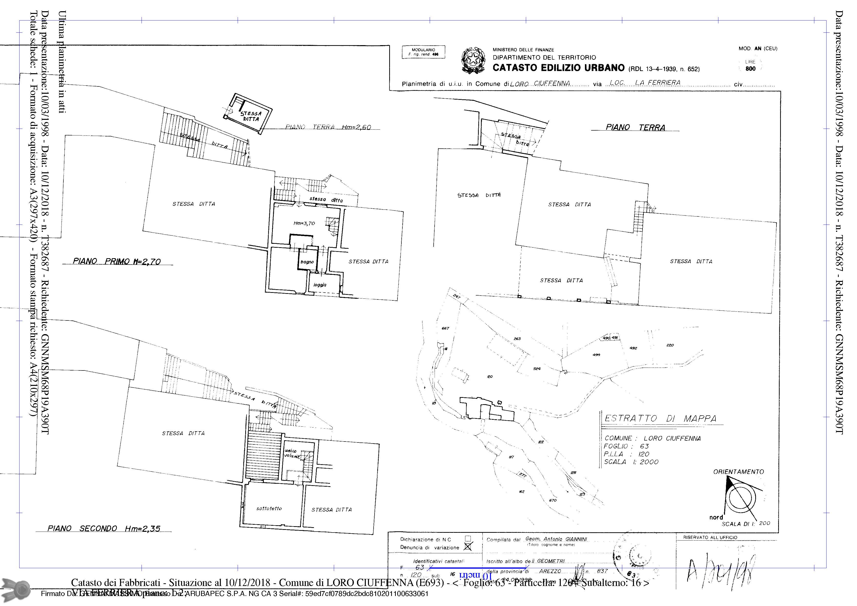
Alloggio su due livelli composto al piano primo da ampio soggiorno-cucina, camera, bagno e loggiato coperto esclusivo al piano secondo una grande camera con soppalco nel sottotetto.PREZZO BASE : 31.920,00 €Offerta minima : 23.940,00 €Questo è un estratto, per una descrizione più dettagliata e completa si invita a prendere visione della perizia o di quanto scritto sull’avviso di vendita sul portale delle vendite pubbliche PVP dal quale La informiamo che è possibile prenotare la visita al lotto di suo interesse.

DATI LOTTO
Lotto

7

Categoria

IMMOBILE RESIDENZIALE

Genere

IMMOBILI

Indirizzo

Via Ferriera n.4, 52100 AREZZO, Arezzo

DATI DI VENDITA
Data Asta

21/01/2026 10:00

Prezzo

23.940,00 €

Tipologia

SENZA INCANTO

Luogo Vendita

aula 7 del Tribunale di Arezzo, Piazza Falcone e Borsellino n.1

Rialzo Minimo

Termine Offerte

20/01/2026 13:00

BENI CHE COMPONGONO IL LOTTO
Categoria

ABITAZIONE DI TIPO CIVILE

Tipologia

IMMOBILE RESIDENZIALE

Ubicazione

Via Ferriera n.4, 52100 AREZZO, Arezzo

Descrizione

Alloggio su due livelli composto al piano primo da ampio soggiorno-cucina, camera, bagno e loggiato coperto esclusivo al piano secondo una grande camera con soppalco nel sottotetto.PREZZO BASE : 31.920,00 €Offerta minima : 23.940,00 €Questo è un estratto, per una descrizione più dettagliata e completa si invita a prendere visione della perizia o di quanto scritto sull’avviso di vendita sul portale delle vendite pubbliche PVP dal quale La informiamo che è possibile prenotare la visita al lotto di suo interesse.

Disponibilità

M.Quadri

Vani

Piano

DATI DELLA PROCEDURA
Procedura

249/2017

Tipologia

giudiziaria

Tribunale

Tribunale di AREZZO

Registro

ESECUZIONI CIVILI IMMOBILIARI

Rito

ESECUZIONE IMMOBILIARE POST LEGGE 80

Pubblicato in data

15/10/2025 10:20

Siti su cui è pubblicato

Giudice

Lucia Bruni

Delegato alla vendita

Notaio Gianfranco di Ioia

(1) Nel rispetto della normativa art. 490 comma 2 c.p.c., le pubblicazioni devono avvenire almeno 45 giorni prima del termine per la presentazione delle offerte o della data dell'incanto
(2) Nel rispetto del D.M. 5.12.2017, pubblicato in G.U. il 10.01.2018, e la successiva pubblicazione delle specifiche tecniche nella G.U. N.16 del 20-1-2018 - piena funzionalità dei servizi del portale delle vendite pubbliche

DOCUMENTI
ASTE NELLE VICINANZE
PREZZO

23.940,00 €

DATA ASTA: 21/01/2026 10:00

TIPOLOGIA: IMMOBILE RESIDENZIALE

VISUALIZZAZIONI: 53

DOCUMENTI